For more information regarding the value of a property, please contact us for a free consultation.
Key Details
Sold Price $319,900
Property Type Single Family Home
Sub Type Single Family
Listing Status Sold
Purchase Type For Sale
Square Footage 2,511 sqft
Price per Sqft $127
Subdivision The Grove At Fischer Farms
MLS Listing ID 21424963
Bedrooms 5
Full Baths 3
Year Built 2025
Lot Size 0.288 Acres
Property Sub-Type Single Family
Property Description
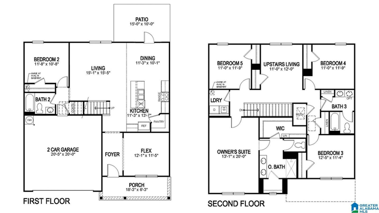
Ask about our interest rates, paid closing cost and easily added options. The Hayden is a spacious two-story plan with 5 bedrooms and 3 bathrooms, covering 2,511 square feet. On the main level, you'll find a versatile flex room near the foyer, perfect for a formal dining area or a convenient home office. The gourmet kitchen boasts an expansive island for added seating, stunning granite countertops, stainless steel appliances, and a generous pantry. It seamlessly connects to the dining space and a roomy living area. Completing the main level is a bedroom with a full bathroom, providing flexibility and convenience for guests or family members. Upstairs, the Primary Bedroom awaits, offering a lavish bath with a shower, private bathroom, double vanities with marble counters, and a spacious walk-in closet. Additionally, the second level comprises three more bedrooms, a full bathroom, a walk-in laundry roo
Location
State AL
County Cullman
Area Cullman County
Rooms
Kitchen Eating Area, Island, Pantry
Interior
Heating Gas Heat, Zoned (HEAT)
Cooling Electric (COOL), Heat Pump (COOL), Zoned (COOL)
Flooring Carpet, Vinyl
Laundry Washer Hookup
Exterior
Exterior Feature None
Parking Features Attached, Driveway Parking, Parking (MLVL)
Garage Spaces 2.0
Building
Lot Description Subdivision
Foundation Slab
Sewer Connected
Water Public Water
Schools
Elementary Schools West Cullman
Middle Schools Cullman
High Schools Cullman
Read Less Info
Want to know what your home might be worth? Contact us for a FREE valuation!

Our team is ready to help you sell your home for the highest possible price ASAP
Bought with Birmingham Non-Member Office
Get More Information




